North view along the east elevation
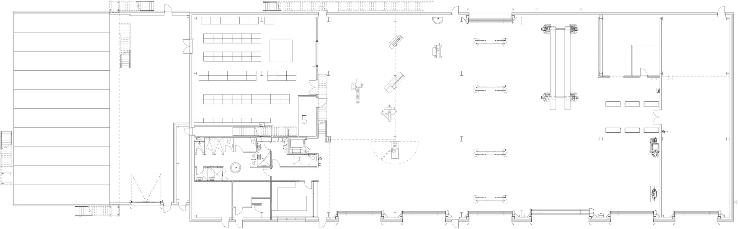
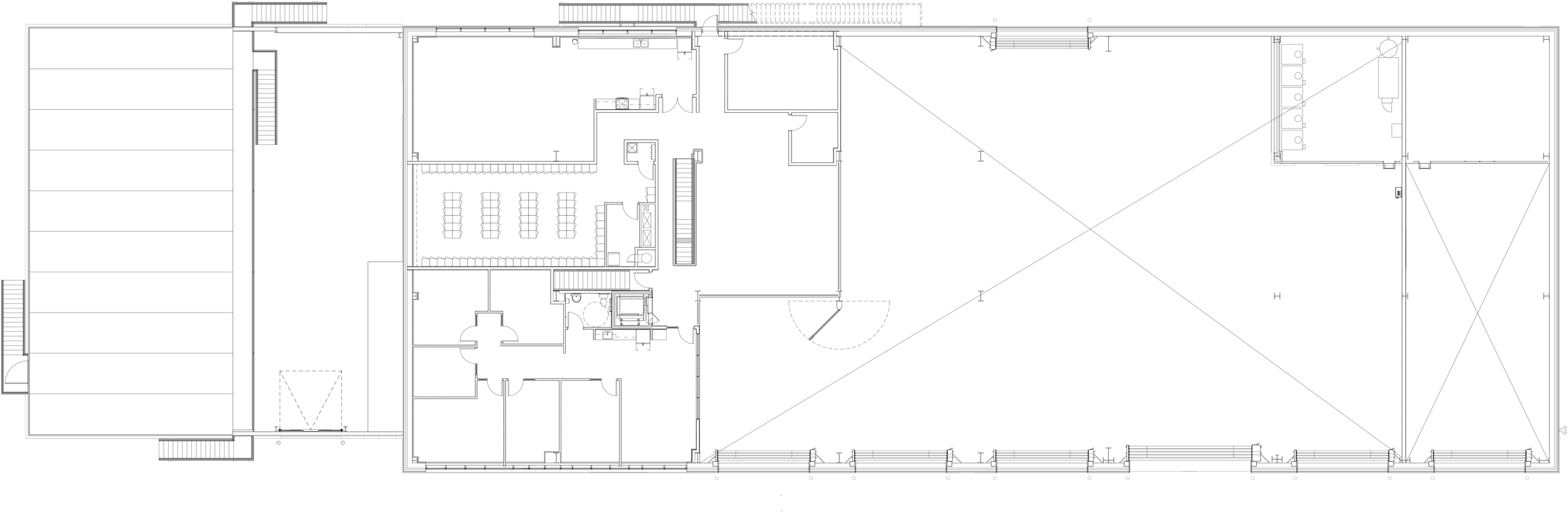
Maintenance Workshop
Place
South End Container Terminal, Halifax, Nova Scotia, Canada
Date
2020–2025
Area
2 976 m² (32 033 ft²)
Cost
$12.0 million
Client
Halifax Port Authority
Architect
Jarsky
Civil Engineer
Harbourside Engineering Consultants
Structural Engineer
Campbell Comeau Engineering Limited
Mechanical Engineer
G.S. Ewert Engineering Ltd.
Electrical Engineer
Strum Engineering Associates Ltd.
Energy Modeller
Eco Smart Energy Solutions
Jarsky designed this high-performance building to house shops for the maintenance and repair of large material handling equipment used at the terminal.
Halifax Port Authority is the owner and client.
PSA Halifax, the operator of the terminal, is the tenant.
Most of the floor area is high-bay workshop space, with a clear height of 10.2 m; one bay extends to 16.0 m.
The south end of the building is two storeys, with a machine shop, parts room, office on the ground floor, and office, change rooms, lunch room, and gym on the second floor.
The facility was designed to target Passive House performance.
The structure is steel, as is the exterior wall system. Steel was selected instead of concrete to expedite construction. This necessitated careful detailing to acheive continuous insulation and avoid thermal bridging which would otherwise result from steel’s very high thermal conductivity.
The foundation walls are cast-in-place sandwich construction with 100 mm of extruded polystyrene insulation (XPS) between the structural concrete and a protective concrete facing. The XPS in the foundation aligns and is continuous with the insulation with the walls above.
The exterior walls include 200 mm of mineral wool insulation with an effective RSI of 5.3 (R 30).
The roof includes 300 mm of polyisocyanurate insulation (Effective RSI 12 / R 68). The field is fastened by adhesive, in order avoid the multitude of point thermal bridges present with mechanical fastening.
Wood or fibre-reinforce plastic (FRP) was used to fabricate bucks at window and door openings. The low conductivity of these materials eliminates thermal bridging at the openings, which reduces heat loss and eliminates condensation.
Windows have thermally-broken frames, and are triple-glazed. The multi-leaf vertical lift bay doors feature insulated panels with faces of low-conductivity FRP.
Structural thermal breaks were included on all structural members penetrating the building envelope, such as brackets supporting the exterior stair and roof ladder.
Level 1

 
                